Our consulting engineering services include creating concepts and conducting feasibility studies. We perform various calculations and FEA simulation studies to ensure the effectiveness of our designs. Our team prepares 3D models, shop drawings, build books, and bills of materials tailored for elevator modernization and material handling devices. We also develop hydraulic and pneumatic diagrams, size cylinders and lines, and perform flow calculations. Additionally, we prepare comprehensive manufacturing plans, design tooling and jigging, and create documentation for marketing and regulatory certifications and approvals. Furthermore, we support product configurator development for engineered-to-order products.
We provide ongoing consulting engineering services and support on an as-needed basis for elevator modernization and retrofit projects, informed by feedback from your team and your client. Our services include developing shop drawings and approval drawings, along with documentation calculations and reports necessary for regulatory approval. Additionally, we reverse engineer worn-out components to prepare documentation for the manufacturing of replacement parts, including those for material handling devices.
Work as an external engineering resource for your engineering department. We provide consulting engineering services as part of a multi-discipline engineering network that includes structural and electrical engineers, technicians, and draft persons. Our team can collaborate on larger multidisciplinary projects, such as elevator modernization and material handling devices. We also offer third-party professional peer review to support your engineering team. Additionally, we provide coaching and mentoring for junior engineers from your organization to help grow your internal engineering team.




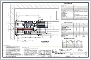
General installation drawing
Build book drawing

3D assembly

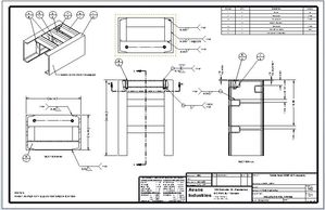
Fabrication drawing
Pneumatic diagram